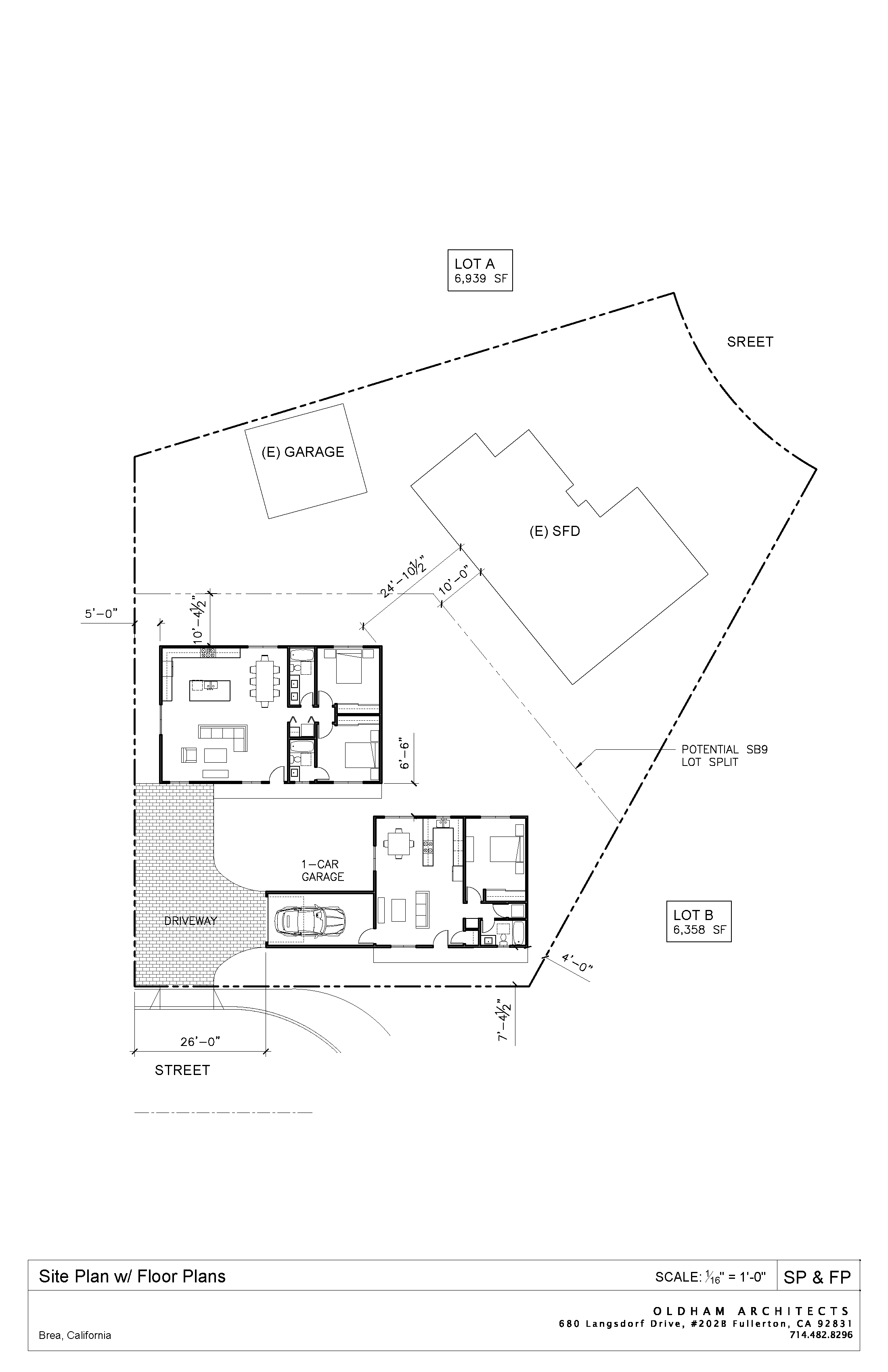
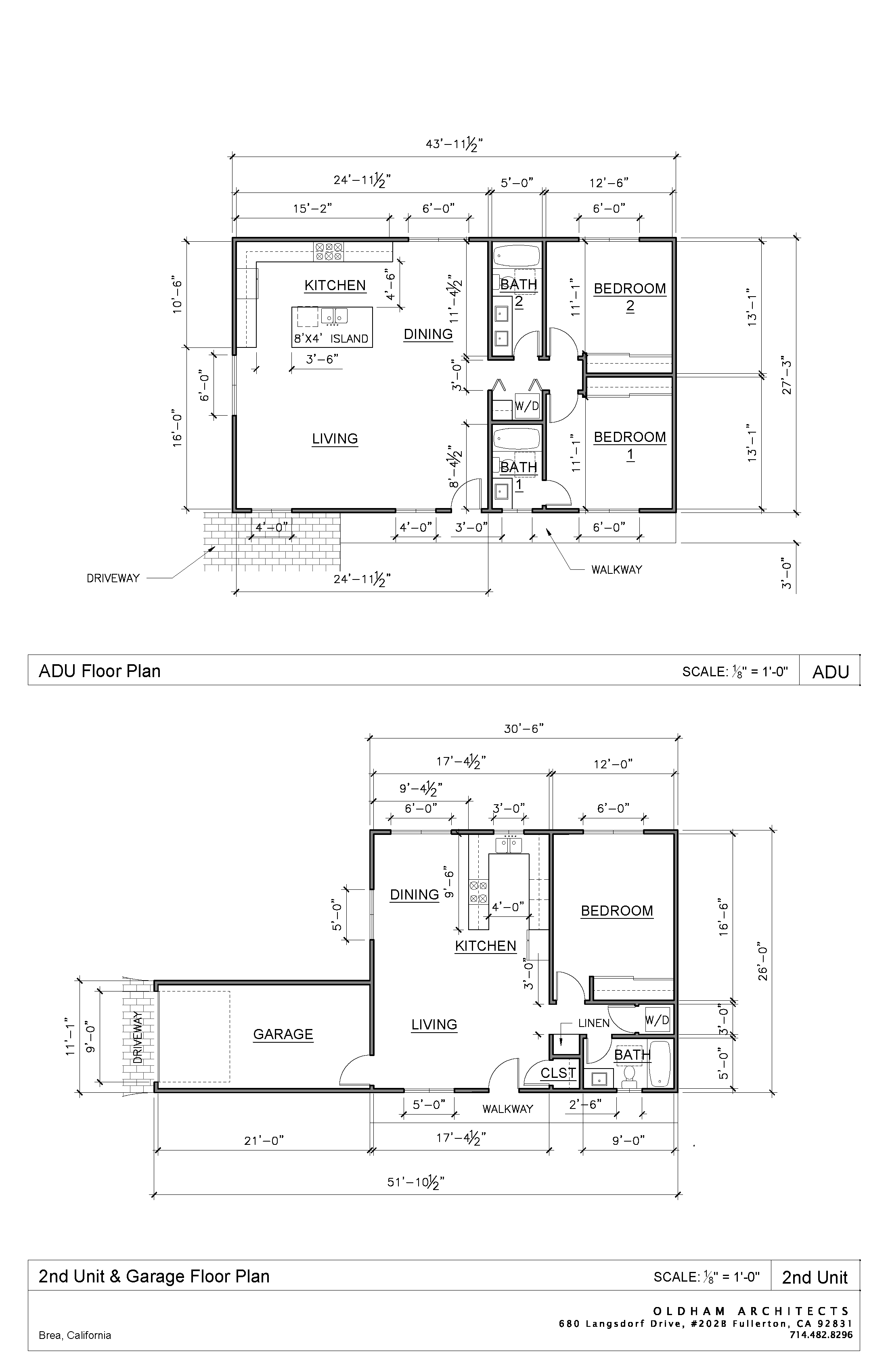
Lot split of a property that faces two streets & two new builds (2nd unit & an ADU) on the current rear yard. New driveway entry.

Concept only. Project has not yet moved to construction.

Program: AutoCad

Previous
Previous

Church ADA Updates - Torrance, CA

Next
Next

Master Suite & Family Room Addition - Fullerton, CA