Full interior and exterior renovation of an abandoned medical building. To be converted into employee offices.
My role: Create a new floor plan, new accessible ramp, and choose all interior finishes.
Program: AutoCad
Existing & Demo Plan
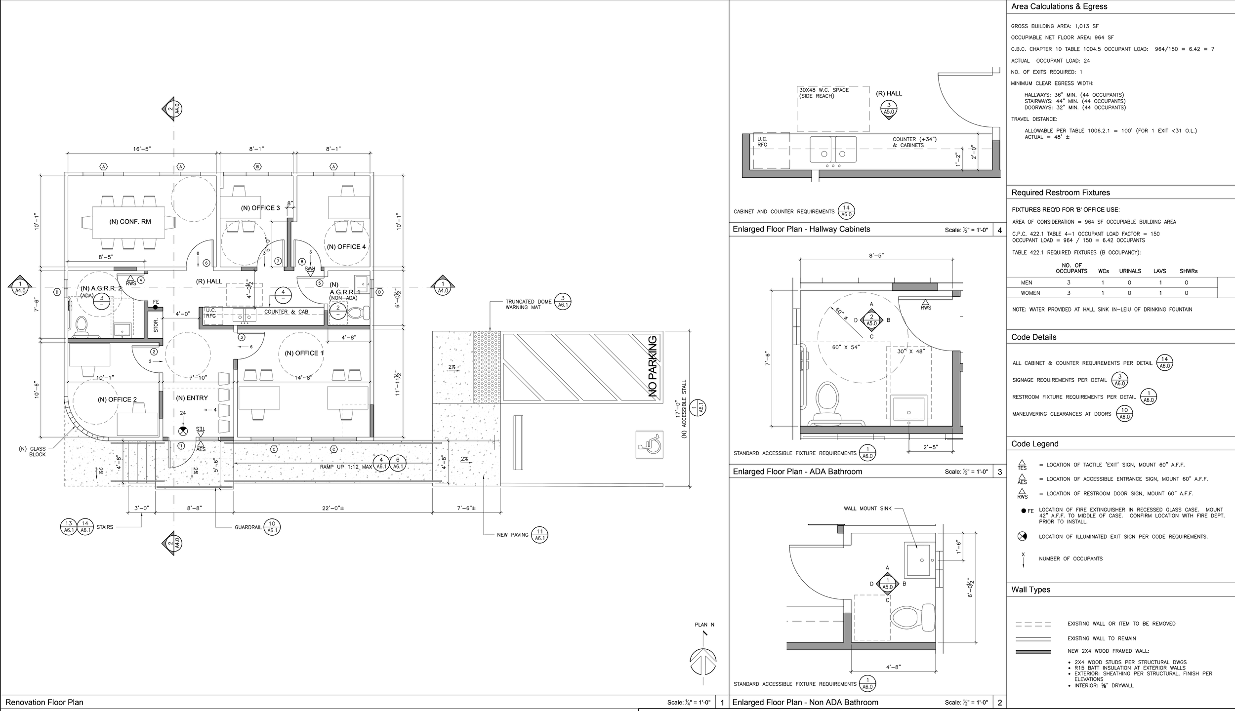
New Floor Plan, ramp, and parking spot
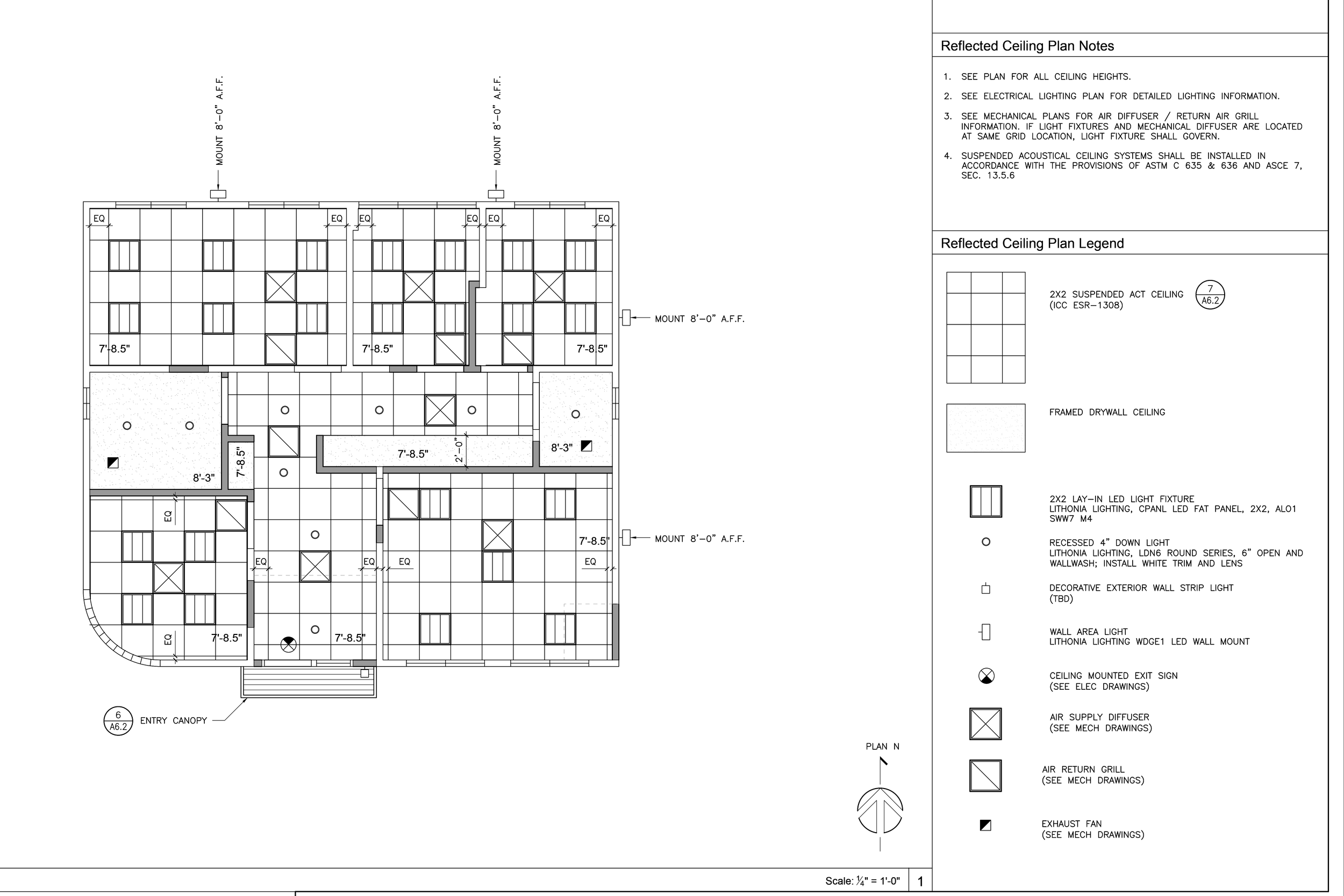
Reflected Ceiling Plan
Roof Plan
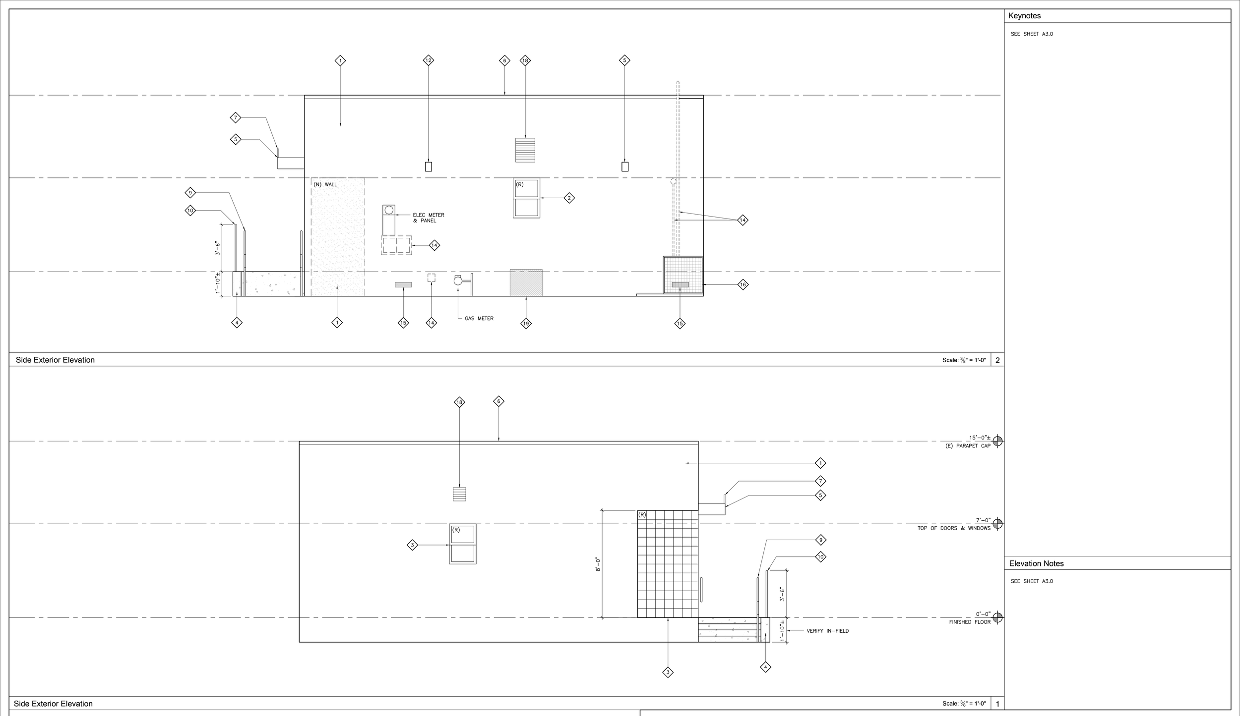
Elevations 1
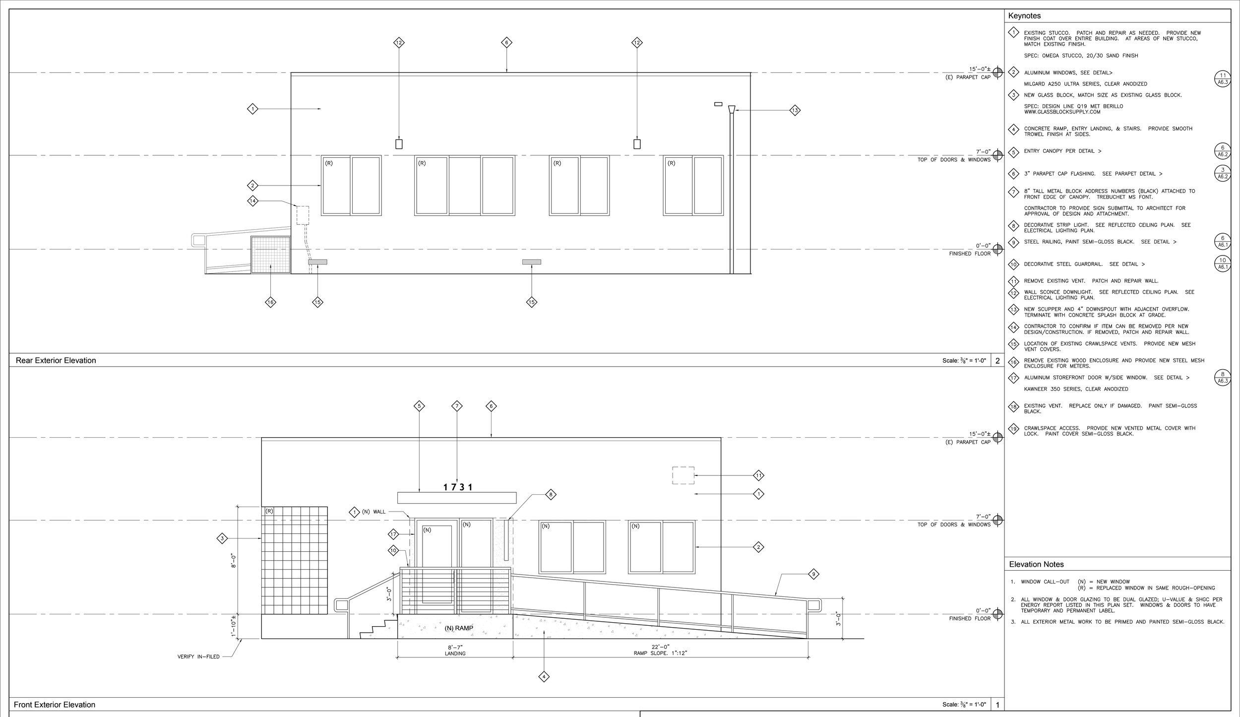
Elevations 2
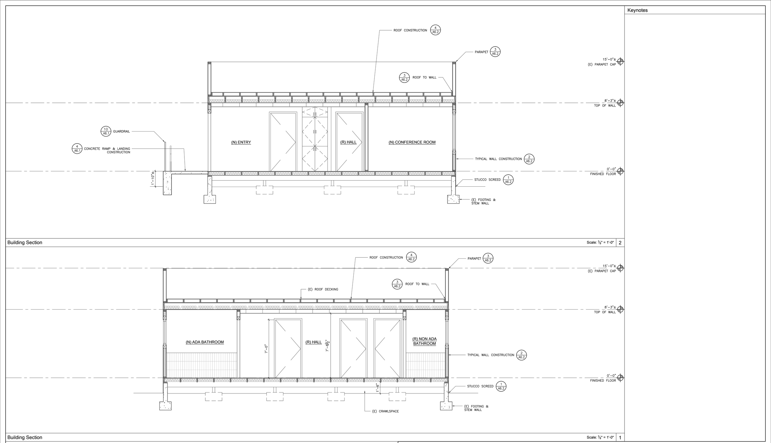
Building Sections
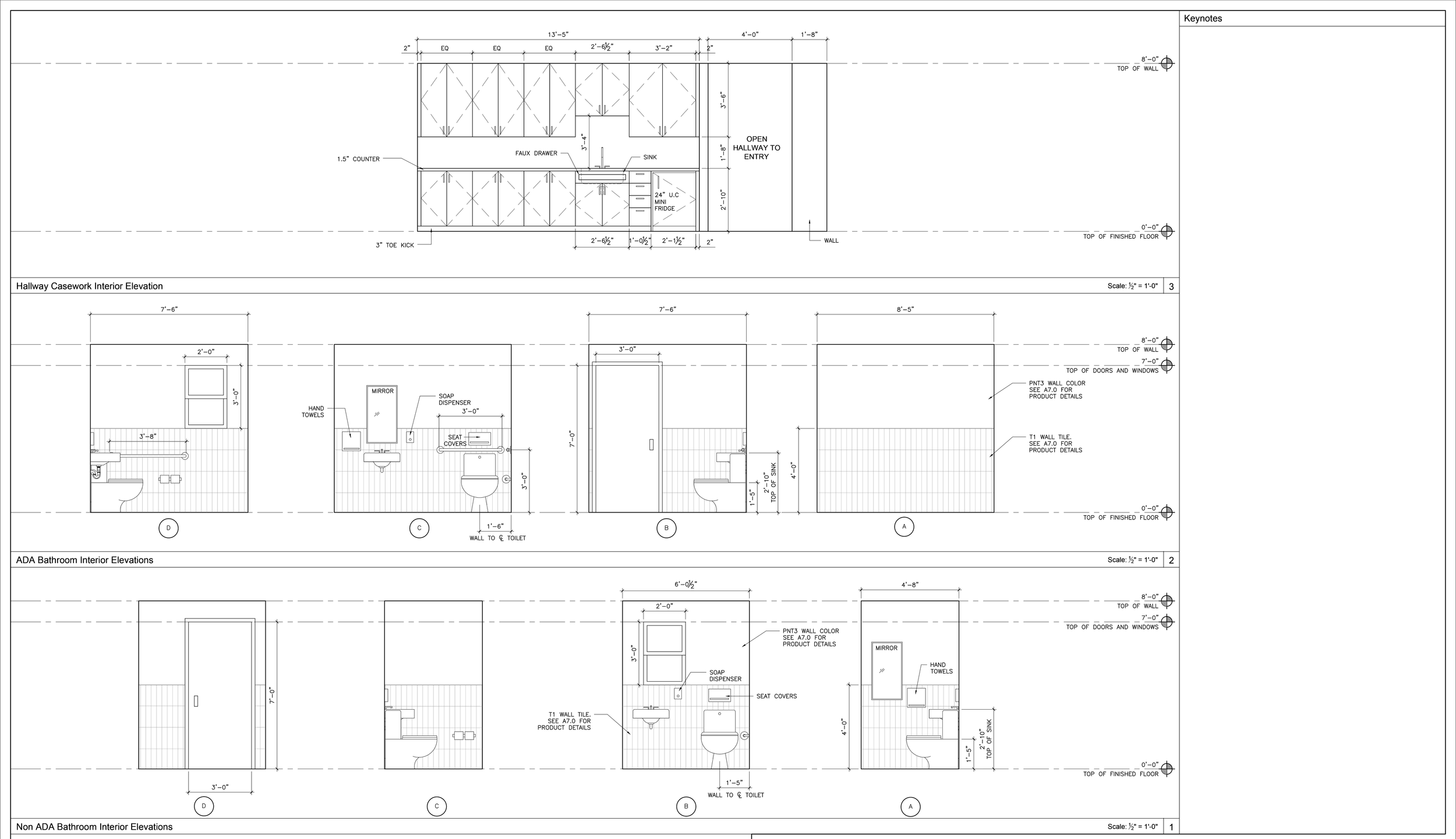
Interior Elevations
Interior Finished