Bedroom
Bedroom Concept for a young woman in her 20s.
Earthy. Moody. Organic. Cozy.
Created in SketchUp.
Narrow landing area for books & purses
Furniture Floor Plan in color
North Elevation
West Elevation
South Elevation
East Elevation
Floor Plan of the empty bedroom.
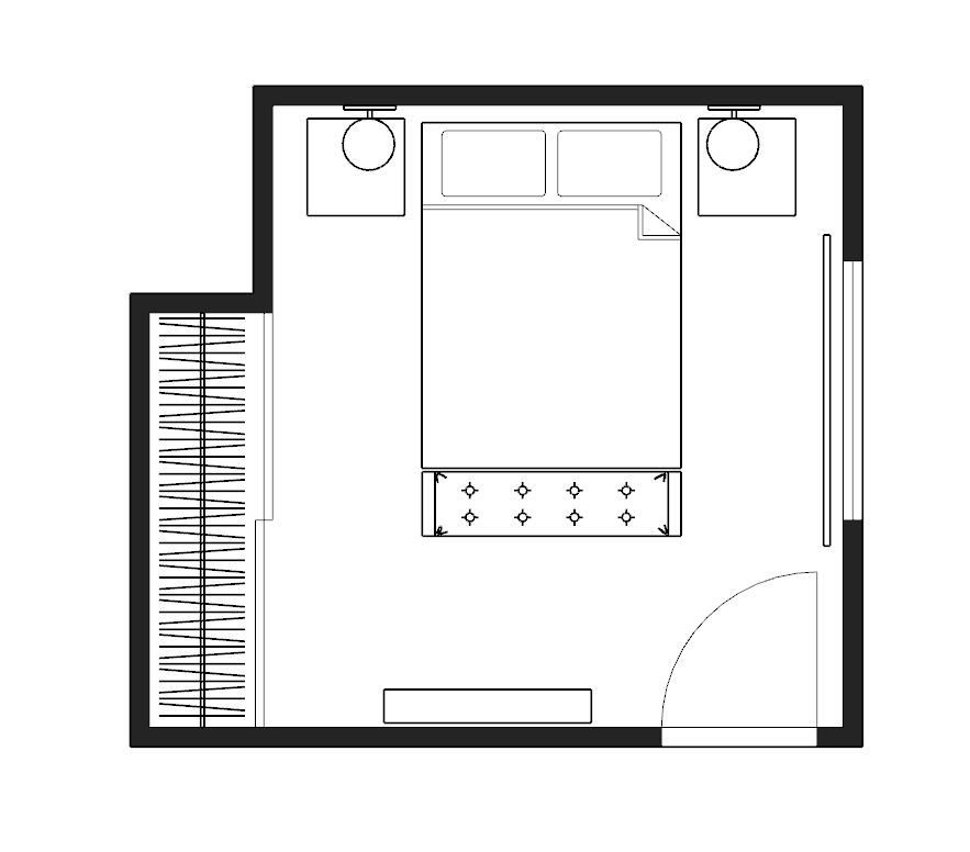
Floor Plan with furniture.
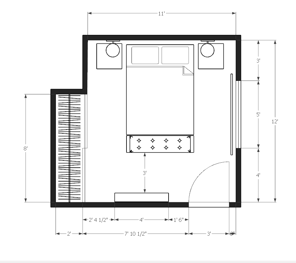
Floor Plan with furniture & dimensions.