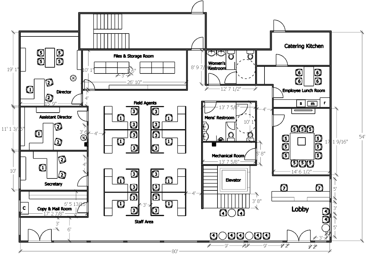
Corporate Office Remodel
Emphasis on space planning, not aesthetics, for an office that went through an expansion. Made in SketchUp.
Emphasis on space planning, not aesthetics, for an office that went through an expansion. Made in SketchUp.